BERNARDS HUS. VIDARÅSEN LANDSBY, 2024

Enebolig/ bestyrerbolig på Vidaråsen Landsby, Andebu. Under oppføring.

Det eksisterende “Bernards hus” på Vidaråsen, var i så dårlig forfatning at det til slutt ble nødvendig å rive og bygge nytt. Målet var å bygge et nytt hus på samme tomt, med oppgradert standard og gjennomført miljøprofil.  

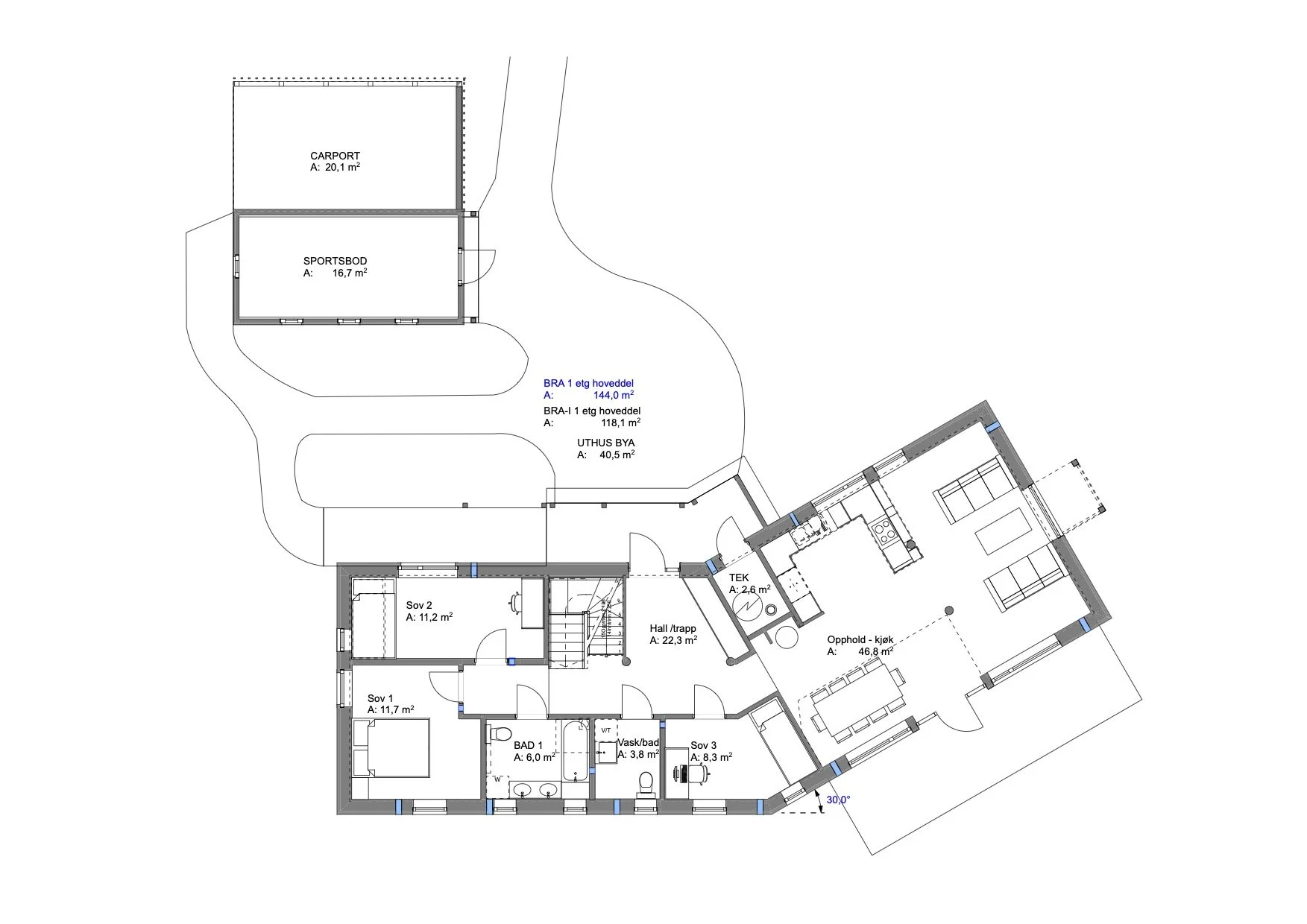
Boligen er på 180 m2, og inneholder 4 soverom, opphold / kjøkken, samt hybel med egen inngang i 2.etg.

Miljøkvaliteter; Pustende konstruksjoner. Tre i vegger, dekker, tak - isolert med trefiber. Trepanel ut og innvendig. Fokus på godt inneklima og sunne byggematerialer. Høy standard i forhold til energieffektivitet, vedfyrt ovn med vannkappe og akkumulatortank. Solcelleanlegg på tak. Boligen benytter naturlig, brukerstyrt ventilasjon.

Prosjektet er gjennomført i samarbeid med siv. ark. Arild Berg, GAIA Arkitektur.

Les mer om Vidaråsen Landby her; https://vidarasen.camphill.no/